粉体物料阀
您的位置:超卓阀门 >>粉体物料阀 >> 鄂式闸门鄂式闸门
鄂式闸门产品概述:
鄂式闸门具有结构简单、操作方便、卸灰彻底、使用寿命长、启闭灵活等特点。广泛应用冶金、矿山、电力、建材、化工、轻工等行业。是种类落料系统的理想控制装置。
鄂式闸门主要性能参数
|
型号规格 |
DEZ-50 |
|
公称压力 |
0.05MPa |
|
壳休试验压力 |
0.075MPa |
|
电源电压 |
380V.50Hz |
|
驱动方式 |
电液动 气动 手动 |
|
卸灰量 |
6-80m3/h |
|
适用温度(℃) |
350 |
|
适用介质 |
干燥粉体物料、晶体料等 |
鄂式闸门主要零部件材料
|
零件名称 |
阀体 |
阀板 |
阀杆 |
电液动装置 |
|
材料 |
Q235-A |
Q235-A |
45#钢 |
成品件 |
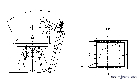
鄂式闸门结构特点
鄂式闸门主要由阀体、阀轴、扇形阀板、销齿齿轮及曲柄机构、电液动推杆或(电动推杆、)组成,采用优质钢板焊接结构、具有体积小、重量轻、阻力小。工作时,电液动推杆的直线往复运动,通过曲柄带动阀轴齿轮,使两个阀板作相对角度的摆动,从而达到控制物料之目的。
鄂式闸门产品主要连接尺寸
|
型号 |
主要尺寸 |
|||||||||||
|
A |
B |
V |
D |
E |
F |
H |
M |
N |
N×a |
n1-φ1 |
n-φ |
|
|
DEZ-30Ⅰ(Ⅱ) |
300 |
400 |
180 |
156 |
100 |
400 |
300 |
320 |
260 |
2×180 |
8-14 |
4-28 |
|
DEZ-40Ⅰ(Ⅱ) |
400 |
500 |
240 |
156 |
120 |
460 |
360 |
2×230 |
||||
|
DEZ-50Ⅰ(Ⅱ) |
500 |
626 |
290 |
240 |
150 |
510 |
480 |
3×190 |
12-18 |
|||
|
DEZ-60Ⅰ(Ⅱ) |
600 |
726 |
340 |
240 |
180 |
560 |
600 |
3×224 |
||||
|
DEZ-70Ⅰ(Ⅱ) |
700 |
850 |
390 |
320 |
220 |
610 |
660 |
4×198 |
16-22 |
|||
|
DEZ-80Ⅰ(Ⅱ) |
800 |
950 |
440 |
320 |
240 |
660 |
760 |
4×222 |
||||
鄂式闸门结构图
鄂式闸门订货须知
订货时请填写《规格书》或注明以下内容:
一、若订货前还未选定型号,请向我们提供您的使用参数:1.公称通径、额定流量系数KV,
2.流体性质(包括公称压力、温度、粘度或酸碱性),3.阀作用形式(电-关式或电-开式),4.流量特性,
5.阀前、阀后压力,6.阀体、阀芯材料,7.输入信号,8.是否带附件,说明附件型号。以便我们的为您正确选型。
二、若已经由设计单位选定我公司的产品型号,请按型号直接向我司销售部订购;
三、当使用的场合非常重要或管路比较复杂时,请您尽量提供设计图纸和详细参数,由我们的专家为您审核把关。
感谢您光顾我们公司,如需了解更多请登录www.zjcz-v.com




