粉体物料阀
您的位置:超卓阀门 >>粉体物料阀 >> 升降比例阀升降比例阀
升降比例阀产品用途:
升降比例阀是一种含气体、无粘度的小颗粒粉尘、粉料等介质的气体输送管道中,作为调节或切断介质流量的主要控制调节设备,它可广泛地适用于冶金、建材、化工、电站、玻璃等行业除尘系统中。
升降比例阀产品特点:
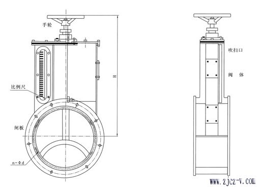
升降比例阀的阀体、阀板采用优质碳钢焊接而成,并在阀体上设有开度显示器,能正确反映阀板的开启位置,同时没有吹哨孔,便于清扫丝杆上灰尘,从而确保阀门的使用寿命及阀门开启力矩。
升降比例阀产品性能:
公称压力:0.01Mpa
工作温度:≤150℃
适用介质:含尘气体、空气、烟气、无粘度的小颗粒粉尘、粉料。
介质流速:≤28m/s
调节特性:等百分比
升降比例阀主要零件材料:
阀体、阀板:采用优质碳钢焊接
阀板与风道接触面:3Cr13I不锈钢
螺旋丝杆:采用2Cr13
升降比例阀主要外形尺寸、连接尺寸及质量 单位:mm
|
公称通径 DN(mm) |
公称压力 PN(MPa) |
L |
D |
D1 |
D2 |
b |
H |
|
200 |
0.1 |
225 |
375 |
320 |
284 |
20 |
865 |
|
250 |
0.1 |
225 |
425 |
370 |
330 |
20 |
890 |
|
300 |
0.1 |
245 |
485 |
430 |
389 |
22 |
1020 |
|
250 |
0.1 |
265 |
555 |
490 |
448 |
22 |
1100 |
|
400 |
0.1 |
265 |
620 |
555 |
503 |
24 |
1225 |
|
450 |
0.1 |
285 |
645 |
600 |
570 |
24 |
1265 |
|
480 |
0.1 |
285 |
735 |
685 |
650 |
24 |
1320 |
|
500 |
0.1 |
285 |
755 |
705 |
670 |
26 |
1330 |
|
550 |
0.1 |
285 |
805 |
755 |
720 |
26 |
1360 |
|
600 |
0.1 |
285 |
850 |
795 |
745 |
28 |
1385 |
|
610 |
0.1 |
285 |
860 |
810 |
772 |
28 |
1395 |
|
650 |
0.1 |
285 |
910 |
830 |
794 |
28 |
1410 |
|
675 |
0.1 |
300 |
935 |
855 |
789 |
28 |
1425 |
|
700 |
0.1 |
300 |
980 |
890 |
845 |
30 |
1495 |
|
800 |
0.1 |
300 |
1075 |
985 |
940 |
30 |
1541 |
|
900 |
0.1 |
300 |
1190 |
1125 |
1070 |
30 |
1718 |
|
1000 |
0.1 |
410 |
1320 |
1210 |
1140 |
32 |
1650 |
|
1200 |
0.1 |
470 |
1530 |
1420 |
1350 |
36 |
1795 |
|
1250 |
0.1 |
470 |
1590 |
1475 |
1410 |
36 |
1800 |
升降比例阀结构图
升降比例阀订货须知
订货时请填写《规格书》或注明以下内容:
一、若订货前还未选定型号,请向我们提供您的使用参数:1.公称通径、额定流量系数KV,
2.流体性质(包括公称压力、温度、粘度或酸碱性),3.阀作用形式(电-关式或电-开式),4.流量特性,
5.阀前、阀后压力,6.阀体、阀芯材料,7.输入信号,8.是否带附件,说明附件型号。以便我们的为您正确选型。
二、若已经由设计单位选定我公司的产品型号,请按型号直接向我司销售部订购;
三、当使用的场合非常重要或管路比较复杂时,请您尽量提供设计图纸和详细参数,由我们的专家为您审核把关。
感谢您光顾我们公司,如需了解更多请登录www.zjcz-v.com





