粉体物料阀
您的位置:超卓阀门 >>粉体物料阀 >> LMD/LMS螺旋闸门LMD/LMS螺旋闸门
LMD/LMS螺旋闸门用于建材、冶金、矿山、电力、化工、玻璃、轻工、粮食等行业的库顶、库底及进出口等。是控制流量变化较大,启动频繁,切断迅速的理想设备。更多产品请至电咨询。
LMD/LMS螺旋闸门工作原理 :
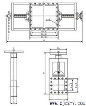
LMD/LMS螺旋闸门主要由框架、闸板、丝杆、螺母等零件构成,用手转动手轮使丝杆带着丝杆螺母和闸板沿水平方向往复运动,达到闸门的启闭目的。
LMD/LMS螺旋闸门有手轮和链轮操纵两种操作形式, I 型为手轮, II 为链轮。单向和双向两种结构形式, LZD 为单向、 LZS 为双向。
LMD/LMS螺旋闸门主要外形尺寸、连接尺寸及质量 单位:mm
|
公称通径 DN(mm) |
公称压力 PN(MPa) |
L |
D |
D1 |
D2 |
b |
H |
|
200 |
0.1 |
225 |
375 |
320 |
284 |
20 |
865 |
|
250 |
0.1 |
225 |
425 |
370 |
330 |
20 |
890 |
|
300 |
0.1 |
245 |
485 |
430 |
389 |
22 |
1020 |
|
250 |
0.1 |
265 |
555 |
490 |
448 |
22 |
1100 |
|
400 |
0.1 |
265 |
620 |
555 |
503 |
24 |
1225 |
|
450 |
0.1 |
285 |
645 |
600 |
570 |
24 |
1265 |
|
480 |
0.1 |
285 |
735 |
685 |
650 |
24 |
1320 |
|
500 |
0.1 |
285 |
755 |
705 |
670 |
26 |
1330 |
|
550 |
0.1 |
285 |
805 |
755 |
720 |
26 |
1360 |
|
600 |
0.1 |
285 |
850 |
795 |
745 |
28 |
1385 |
|
610 |
0.1 |
285 |
860 |
810 |
772 |
28 |
1395 |
|
650 |
0.1 |
285 |
910 |
830 |
794 |
28 |
1410 |
|
675 |
0.1 |
300 |
935 |
855 |
789 |
28 |
1425 |
|
700 |
0.1 |
300 |
980 |
890 |
845 |
30 |
1495 |
|
800 |
0.1 |
300 |
1075 |
985 |
940 |
30 |
1541 |
|
900 |
0.1 |
300 |
1190 |
1125 |
1070 |
30 |
1718 |
|
1000 |
0.1 |
410 |
1320 |
1210 |
1140 |
32 |
1650 |
|
1200 |
0.1 |
470 |
1530 |
1420 |
1350 |
36 |
1795 |
|
1250 |
0.1 |
470 |
1590 |
1475 |
1410 |
36 |
1800 |
LMD/LMS螺旋闸门订货须知
订货时请填写《规格书》或注明以下内容:
一、若订货前还未选定型号,请向我们提供您的使用参数:1.公称通径、额定流量系数KV,
2.流体性质(包括公称压力、温度、粘度或酸碱性),3.阀作用形式(电-关式或电-开式),4.流量特性,
5.阀前、阀后压力,6.阀体、阀芯材料,7.输入信号,8.是否带附件,说明附件型号。以便我们的为您正确选型。
二、若已经由设计单位选定我公司的产品型号,请按型号直接向我司销售部订购;
三、当使用的场合非常重要或管路比较复杂时,请您尽量提供设计图纸和详细参数,由我们的专家为您审核把关。
感谢您光顾我们公司,如需了解更多请登录www.zjcz-v.com





