气动薄膜隔膜调节阀
您的位置:超卓阀门 >>气动薄膜隔膜调节阀 >> ZJHT气动薄膜调节隔膜阀ZJHT气动薄膜调节隔膜阀
ZJHT气动薄膜调节隔膜阀(简称气动隔膜阀)采用隔膜与阀体间“山”形凸出面进行密封,与外界隔离(无填料函),阀体流路简单、阻力小额定流量系数大、阀门关时内外泄漏量为零,可覆盖防腐层,特别适合于剧毒、腐蚀性介质或不允许污染介质的调节。
安装、使用注意事项
1、气动隔膜阀应垂直安装于管道上, 体积重量较大的以及使用在振动场合时应加支承和夹固。
2、气动隔膜阀一般应设有旁通管路, 以便在隔膜发生故障或维修时能转换成旁路操作, 使生产过程正常进行, 在一般不重要场合, 装设手轮机构后可以省略旁通管路, 以进行手动操作, 同时可限制阀门开度, 当手轮机构停止使用时, 应恢复到原空档位置, 以利于自控系统的正常进行。
3、清洗管道时, 调节应处于最大开度, 以便排除管道内污物。
4、如阀体衬有防腐层, 安装在管道上时,应采用耐腐蚀软垫, 并注意不使阀体法兰密封面受损。
5、对隔膜及衬里应定期检查, 防止因腐蚀和破裂而损坏其它零件和造成事故.
ZJHT气动薄膜调节隔膜阀主要参数
|
公称通径mm |
15 |
20 |
25 |
40 |
50 |
65 |
80 |
100 |
150 |
200 |
||
|
公称压力MPa |
0.6 10 |
|||||||||||
|
行程mm |
10 |
16 |
25 |
40 |
60 |
|||||||
|
流量特性 |
近似快开型 |
|||||||||||
|
介质温度℃ |
-15~200(常温型)、-40~+250、-40~+450(中温型)、-100~+200(低温型) |
|||||||||||
|
法兰形式 |
法兰密封面形式按JB77,其中铸铁法兰按光滑式,铸钢法兰按凹式 |
|||||||||||
|
阀体材质 |
PN |
0.6,1.6 |
WCB(ZG230-450) CF3CF8 CF8M |
|||||||||
|
4.0,6.4 |
WCB(ZG230-450)、ZG1Cr18Ni9Ti、ZG0Cr18Ni12Mo2Ti CF8 CF8M |
|||||||||||
|
可调比R |
30:1 |
|||||||||||
|
气源接头 |
M16×1.5 |
|||||||||||
|
公称通径(mm) |
配用执行机构号 |
主要技术参数 |
||
|
薄膜有效面积(cm2) |
行程(mm) |
额定流量系数Kv值 |
||
|
15 |
ZMA(B)-2 |
280 |
10 |
8 |
|
20 |
12 |
|||
|
25 |
16 |
|||
|
32 |
ZMA(B)-3 |
400 |
16 |
28 |
|
40 |
60 |
|||
|
50 |
25 |
68 |
||
|
65 |
ZMA(B)-4 |
630 |
90 |
|
|
80 |
40 |
160 |
||
|
100 |
300 |
|||
|
项目 |
技术指标 |
|
|
不带定位器 |
带定位器 |
|
|
基本误差% |
±10 |
±1.5 |
|
回差% |
8 |
1.5 |
|
死区% |
6 |
0.6 |
|
允许泄漏量 |
衬里材料为聚三氟乙烯隔膜材料 |
10-4×阀额定容量 |
|
无衬里材料为,隔膜材料为:氯 |
5×10-6×阀额定容量 |
|
|
可配附件 |
电气定位器或电/气转换器 空气过滤减压器 电磁阀 手轮机构等 |
|
|
额定流量系数Kv偏差% |
±20 |
|
|
公称通径DN(mm) |
15 |
20 |
25 |
32 |
40 |
50 |
65 |
80 |
100 |
|||
|
额定流量系数Kv |
8 |
12 |
16 |
28 |
60 |
67 |
90 |
160 |
300 |
|||
|
公称压力(MPa) |
1.0 |
|||||||||||
|
配用执行机构型号 |
ZMA(B)-2 |
ZMA(B)-3 |
ZMA(B)-4 |
|||||||||
|
关闭时 |
信 |
P2=0 |
120 |
0.9 |
0.9 |
0.40 |
0.40 |
0.30 |
0.2 |
0.2 |
0.1 |
0.05 |
|
140 |
1.0 |
1.0 |
0.80 |
0.80 |
0.60 |
0.4 |
0.4 |
0.2 |
0.10 |
|||
|
P1=P2 |
120 |
0.45 |
0.45 |
0.20 |
0.20 |
0.15 |
0.1 |
0.1 |
0.05 |
0.02 |
||
|
140 |
0.9 |
0.9 |
0.40 |
0.40 |
0.30 |
0.2 |
0.2 |
0.1 |
0.05 |
|||
ZJHT气动薄膜调节隔膜阀主要材料
|
阀体材料 |
衬里材料 |
隔膜材料 |
使用温度 |
适用场合 |
|
铸铁HT200 |
无 |
氯丁橡胶 |
0~65℃ |
无腐蚀性介质,水及研磨剂,泥浆类介质 |
|
铸铁HT200 |
聚三氟氯乙烯 |
氟橡胶 |
-15~150℃ |
强酸、强碱、强氧化剂和一般有机溶剂,不适于泥浆介质 |
|
铸不锈钢 |
无 |
氟橡胶 |
-20~200℃ |
一般酸、碱有机溶剂等介质 |
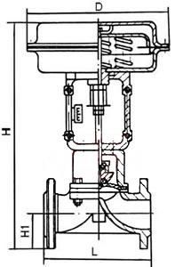
ZJHT气动薄膜调节隔膜阀外形尺寸
ZJHT气动薄膜调节隔膜阀尺寸数据
|
公称通径 |
外形安装尺寸 |
||||
|
A |
H |
H1 |
L |
||
|
ZMAT型 |
ZMBT型 |
||||
|
15 |
280 |
479 |
532 |
47.5 |
140 |
|
20 |
479 |
532 |
52.5 |
145 |
|
|
25 |
479 |
532 |
57.5 |
155 |
|
|
32 |
325 |
538 |
617 |
67.5 |
165 |
|
40 |
553 |
632 |
72.5 |
190 |
|
|
50 |
562 |
641 |
80 |
210 |
|
|
65 |
410 |
754 |
855 |
90 |
240 |
|
80 |
100% |
876 |
97.5 |
270 |
|
|
100 |
857 |
958 |
107.5 |
335 |
|
注:法兰按JB78-59《铸铁法兰》标准选定
ZJHT气动薄膜调节隔膜阀订货须知
订货时请填写《规格书》或注明以下内容:
一、若订货前还未选定型号,请向我们提供您的使用参数:1.公称通径、额定流量系数KV,
2.流体性质(包括公称压力、温度、粘度或酸碱性),3.信号压力、弹簧范围,4.流量特性,
5.阀的开关型式,6.阀体、隔膜材料,7.是否带附件,说明附件型号。以便我们的为您正确选型。
二、若已经由设计单位选定我公司的产品型号,请按型号直接向我司销售部订购;
三、当使用的场合非常重要或管路比较复杂时,请您尽量提供设计图纸和详细参数,由我们的专家为您审核把关。





